2- . /3-
: 27.11.2015 / ID-1328428
/
2200000 .
:
:
: 79675005051
E-mail: olga.an64@mail.ru
:
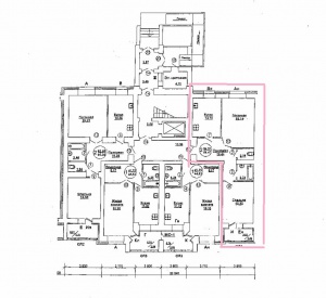
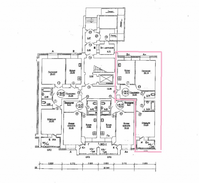
2., , . (3- ). 1 10 . - 63 ., 31 ., 13 .. 13 ., 13 .. 18 .., . . 3 . , , , . . , , -, , "" , - "-" (). . , - ! ? !
(, , , , , , ). , , , . - 8 ! "i", 8-967-500-50-51, .
:








