1.., 31, /
: 24.12.2015 / ID-1332114
/
1050000 .
:
:
: 24-90-30, 222-484
E-mail: v.misheneva@yandex.ru
:
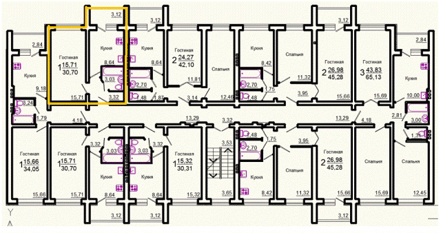
., , . , . .9 (11,12), 3 . 30,715,718,64.
" " , - , .
, , , . - , .
2015.
:











